仲介
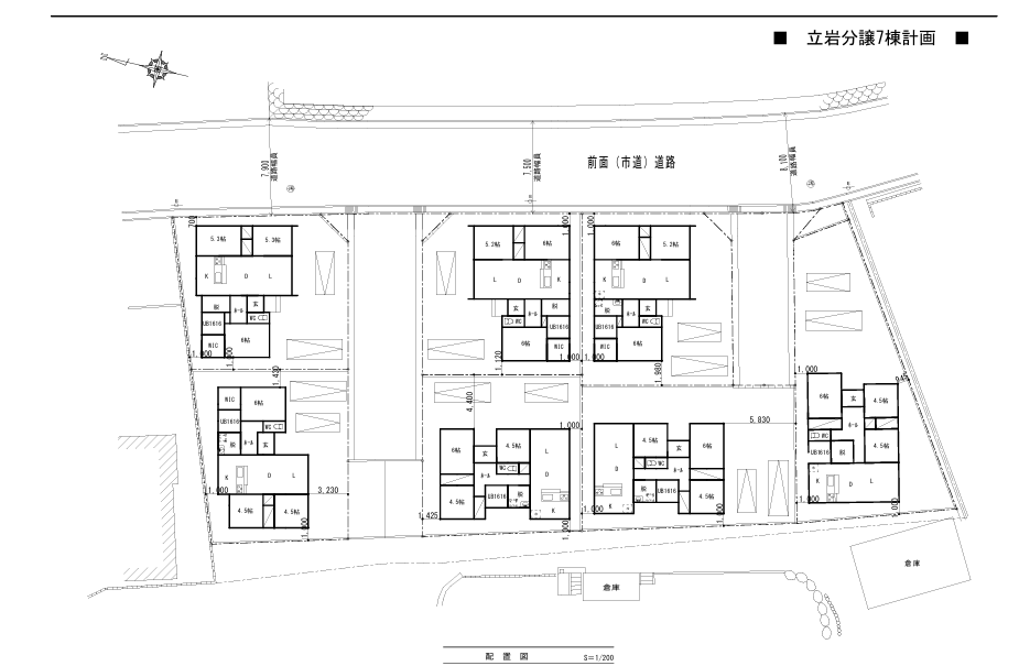
◇物件名:クレステージ新飯塚(全7戸)
◇所在:福岡県飯塚市立岩1328番6他(住居表示)
福岡県飯塚市立岩字浦ノ谷1328番地7他(公簿地番)
◇交通:JR筑豊本線「新飯塚」駅より徒歩約8分
◇価格:13,000万円
◇表面利回り:9.04%(現在満室)、月収:980,000円(年収:11,760,000円)
◇地目:宅地、雑種地
◇種別:平屋一戸建(3LDK×7戸)+各戸駐車場2台可
◇構造:木造合金メッキ鋼板ぶき平家建て
◇用途地域:非線引き区域、第一種住居地域
◇建蔽率:60%
◇容積率:200%
◇敷地面積:1,315.48㎡(約397.93坪) ※公簿面積
◇建物面積:A棟72.69㎡(約21.98坪)、B棟68.73㎡(約20.79坪)、C棟72.45㎡(約21.91坪)、D棟70.38㎡(約21.28坪)、E棟72.45㎡(約21.91坪)、F棟70.38㎡(約21.28坪)、G棟71.21㎡(約21.54坪) ※延べ床面積
◇築年月:A~D棟 令和7年(2025年)6月、E~G棟 令和7年(2025年)5月
◇引渡日:相談
◇制限等:法22条区域
◇その他:
建物固定資産税額:令和8年4月以降判明
借地料:15万9,140円(月間)
【借地種類】地上権
【借地期間】2025年2月1日から2097年1月31日(72年間※40年後から中途解約可能)
※土地の固定資産税はかかりません。
※管理条件付き
◇情報登録日:令和8年4月10日(更新予定日:令和8年4月24日)
【担当者連絡先】
菅原 純(080-7059-8005)


